Skip to content
Renegade Homes
Home Models
Standard Features
Our Build Process
Contact
Renegade Homes
Toggle Menu
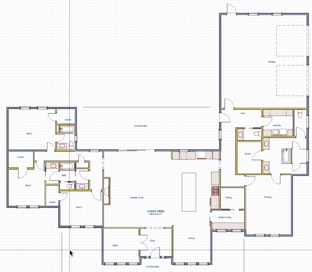
The Sycamore
3500 SF • 4 Beds • 3.5 Baths
Story
Highlights
Floor Plan
Home Models
Standard Features
Our Build Process
Contact