The Renegade

Story
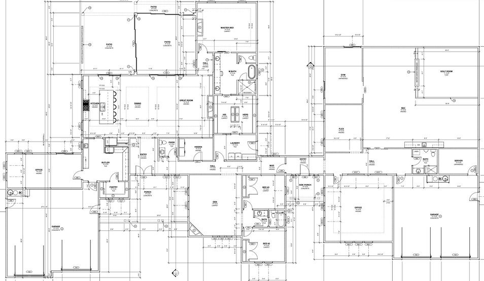
The Renegade is the embodiment of what’s possible when design, craftsmanship, and customization are taken to their highest level. Created as a true showcase residence, this home balances scale with warmth and intention.
Highlights
• Golf simulator room
• Dedicated gym and wellness space
• Butler’s kitchen and oversized pantry
• Multiple entertaining zones
• Vault room and specialty spaces
Floor Plan