The Lloyd

Story
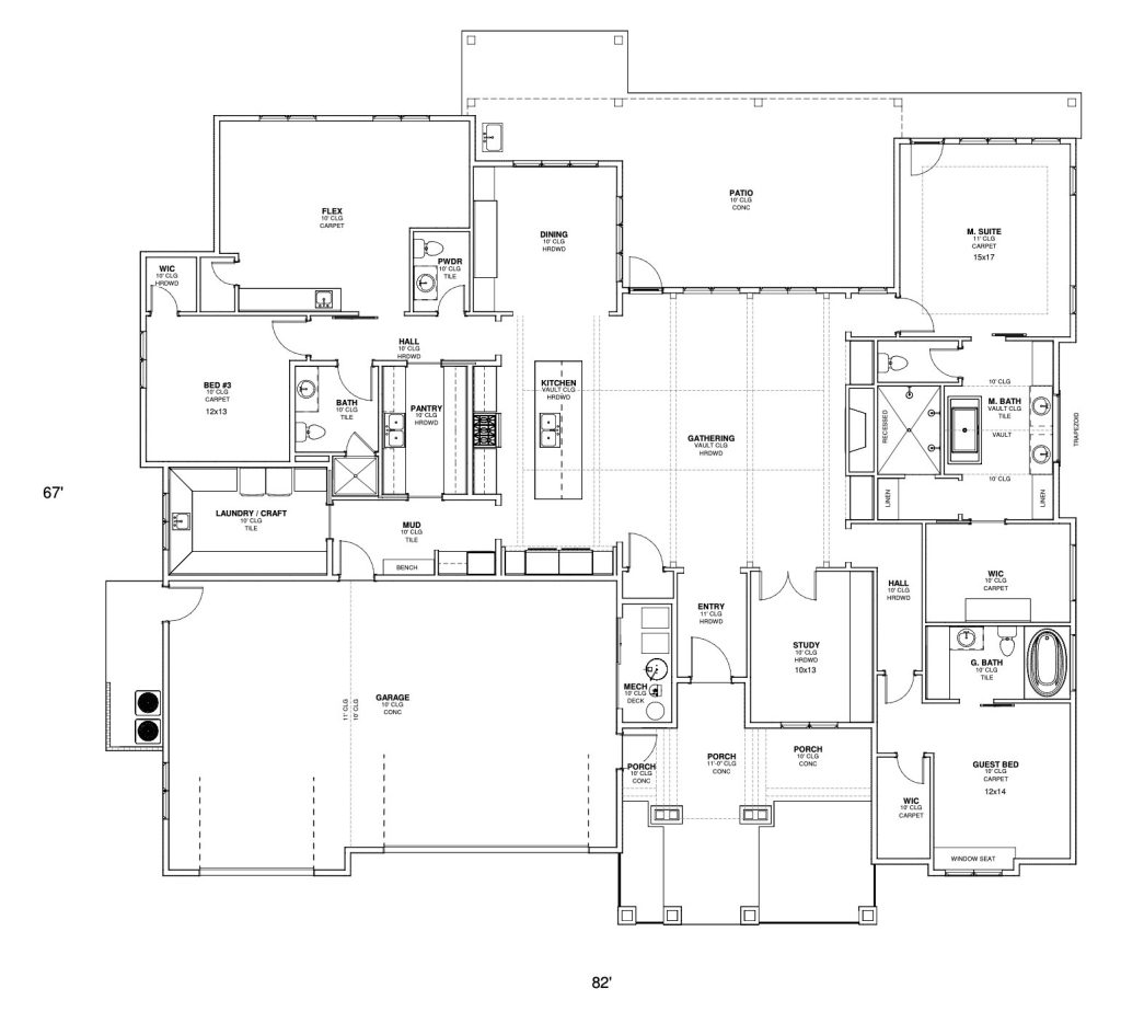
The Lloyd is a flexible plan designed for everyday comfort and easy entertaining. With approximately 3484 sq ft and 4 bedrooms / 3.5 baths, it balances space and livability.
Highlights
• Customizable plan options
• Open living concept
• Quality-built standard features
• Designed for your lot
Floor Plan