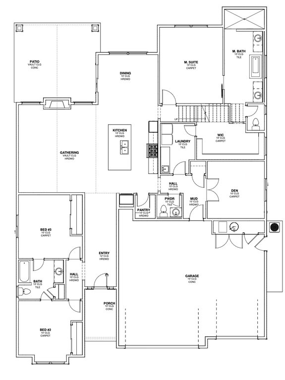
The Howard

Story
The Howard is a flexible plan designed for everyday comfort and easy entertaining. With approximately 2950 sq ft and 3-4 bedrooms / 2 baths, it balances space and livability.
Highlights
• Customizable plan options
• Open living concept
• Quality-built standard features
• Designed for your lot
Floor Plan